Completed in Fall 2025, Semester 4.  For this assignment, we were asked to select a notable person for whom we would design a house. I chose Frank Gehry because I admire his use of raw materials. Additionally, during my graphic design studies at Cal State San Bernardino, for a senior project, I created a metal-bound anthology of Frank Gehry's work.

Frank Gehry passed away on 5 December 2025, in Santa Monica, at the age of 96. Gehry's contribution to the field of architecture is far-reaching, as he utilized basic materials in new ways and incorporated aerospace design into his sculptural structures. 

For this project, AutoCAD, SketchUp, Photoshop & Illustrator were used. The design of this house is intended to facilitate learning Revit and completing the plans with the new technical skills gained in Intro to Revit. 

Collage illustrations completed in Photoshop. 
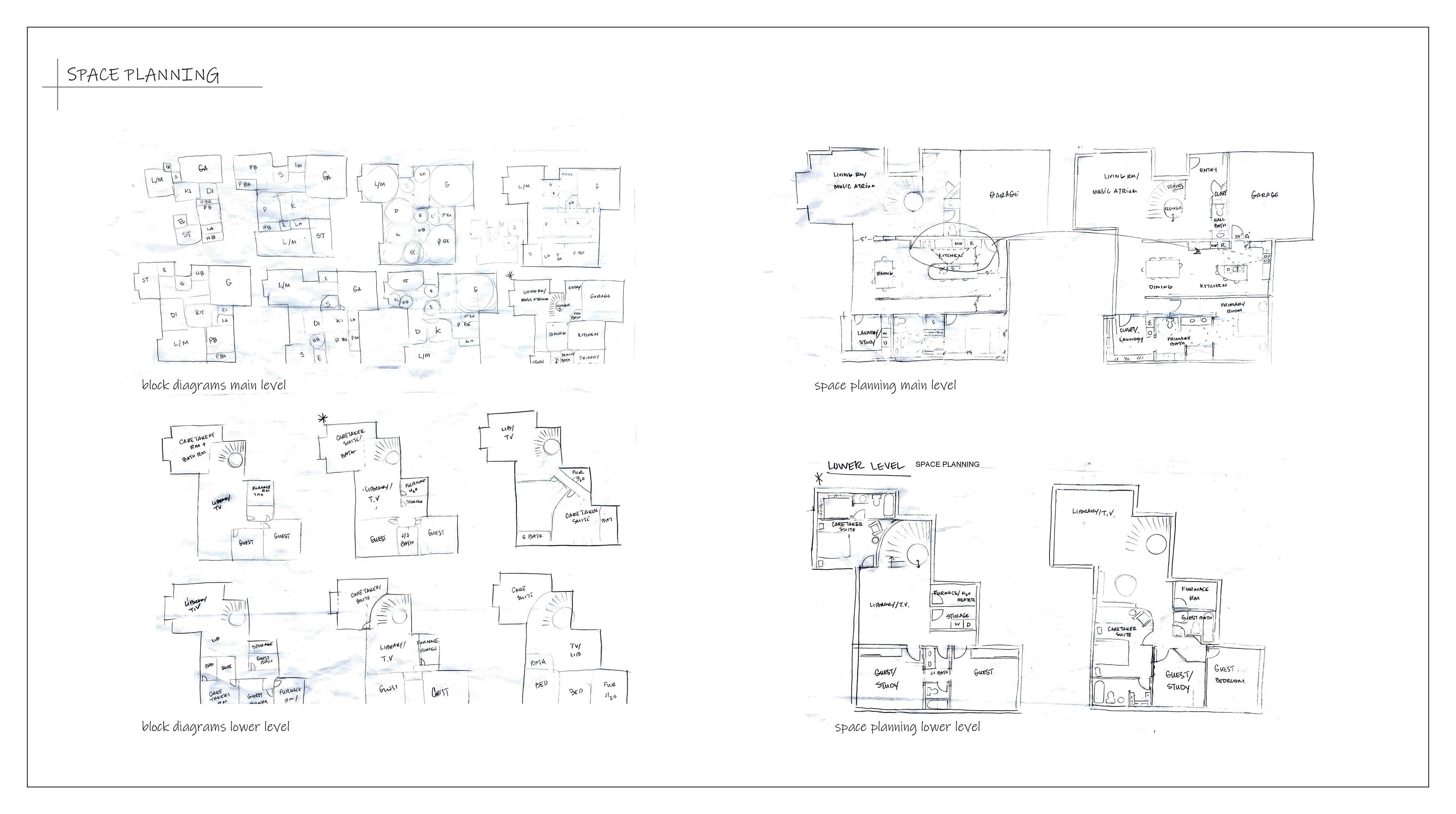
Space planning drawn by hand. 
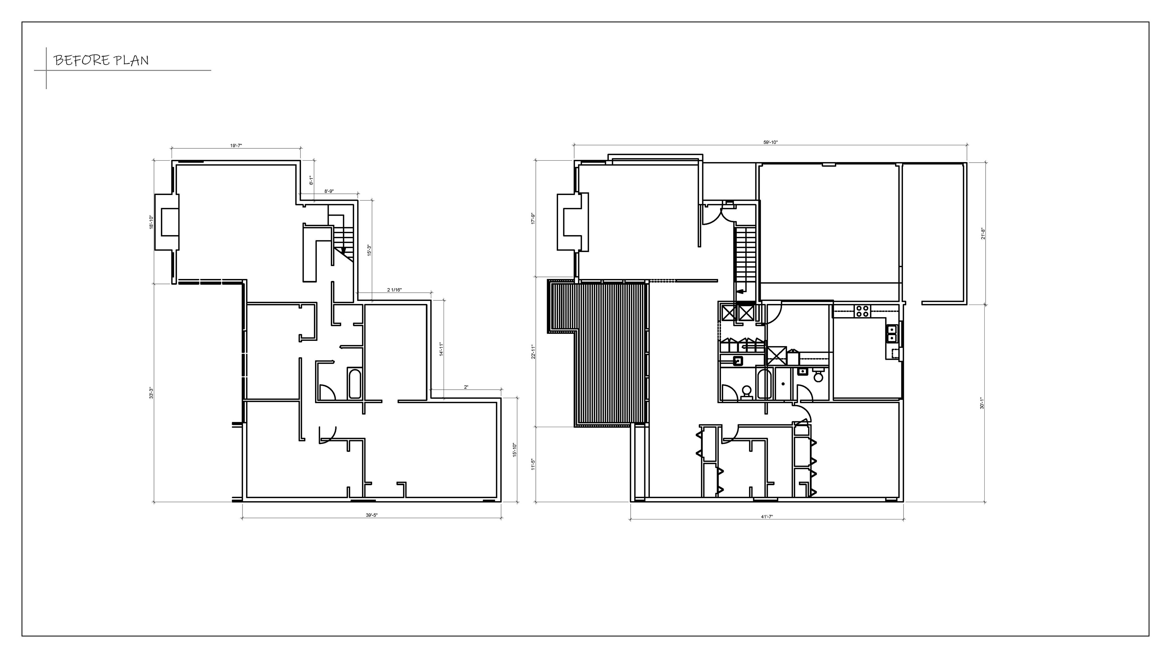
Before Plans completed in AutoCAD. 
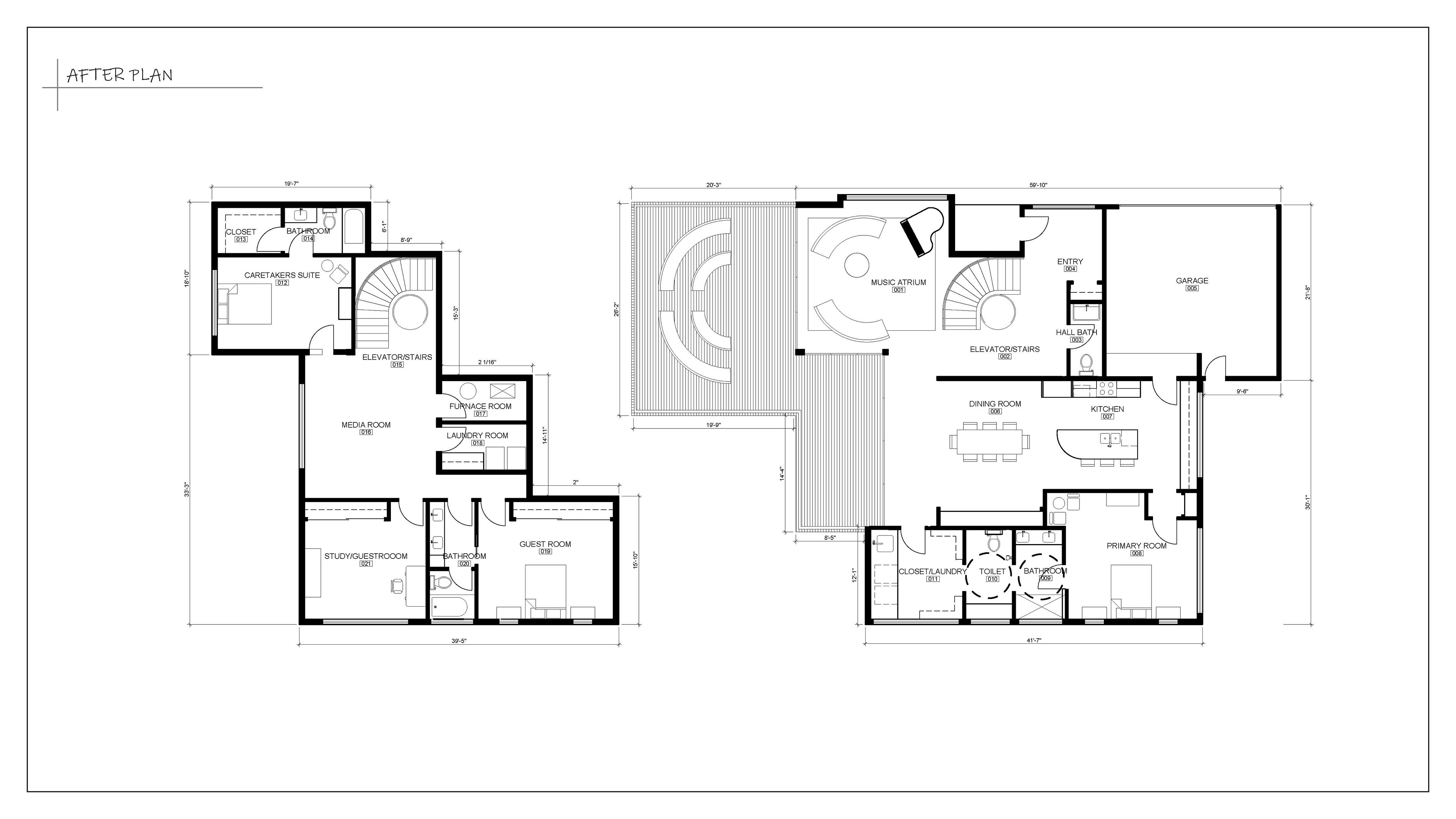
After Plans created in AutoCAD. 
Story Boards created in SketchUp and Photoshop. 
Basic Finishes completed in Photoshop. 
Basic Finishes completed in SketchUp and Photoshop. 
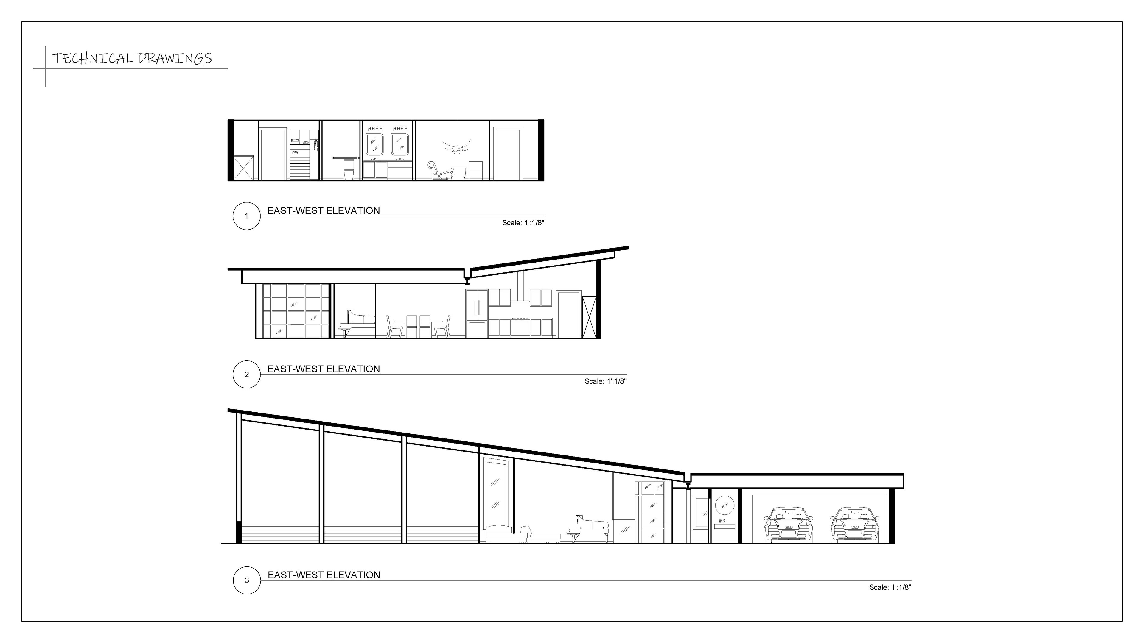
Technical Drawings completed in AutoCAD. 
Technical Drawings completed in SketchUp. 
Roof Sketches completed with hand sketching. 
Roof Visualizations completed in SketchUp
Elevations completed in SketchUp. 
Interior Visualization completed in SketchUp with V-Ray extension. 
Presentation completed in InDesign. 
Back to Top