Winter 2026, Semester 5: Solstice & Stone assignment in Studio II was to design a boutique hotel in downtown Salt Lake City. The hotel is focused on wellness, natural elements, and calm aesthetics. The Japandi design style was selected to combine the minimalism of Zen with the warmth of Scandinavian design. Construction drawings to be completed next term in Revit. 

Design inspiration for the lobby was created in Photoshop. 

Space planning completed with hand sketching. 

Material board created in Photoshop. 

Wireframe created in SketchUp. 

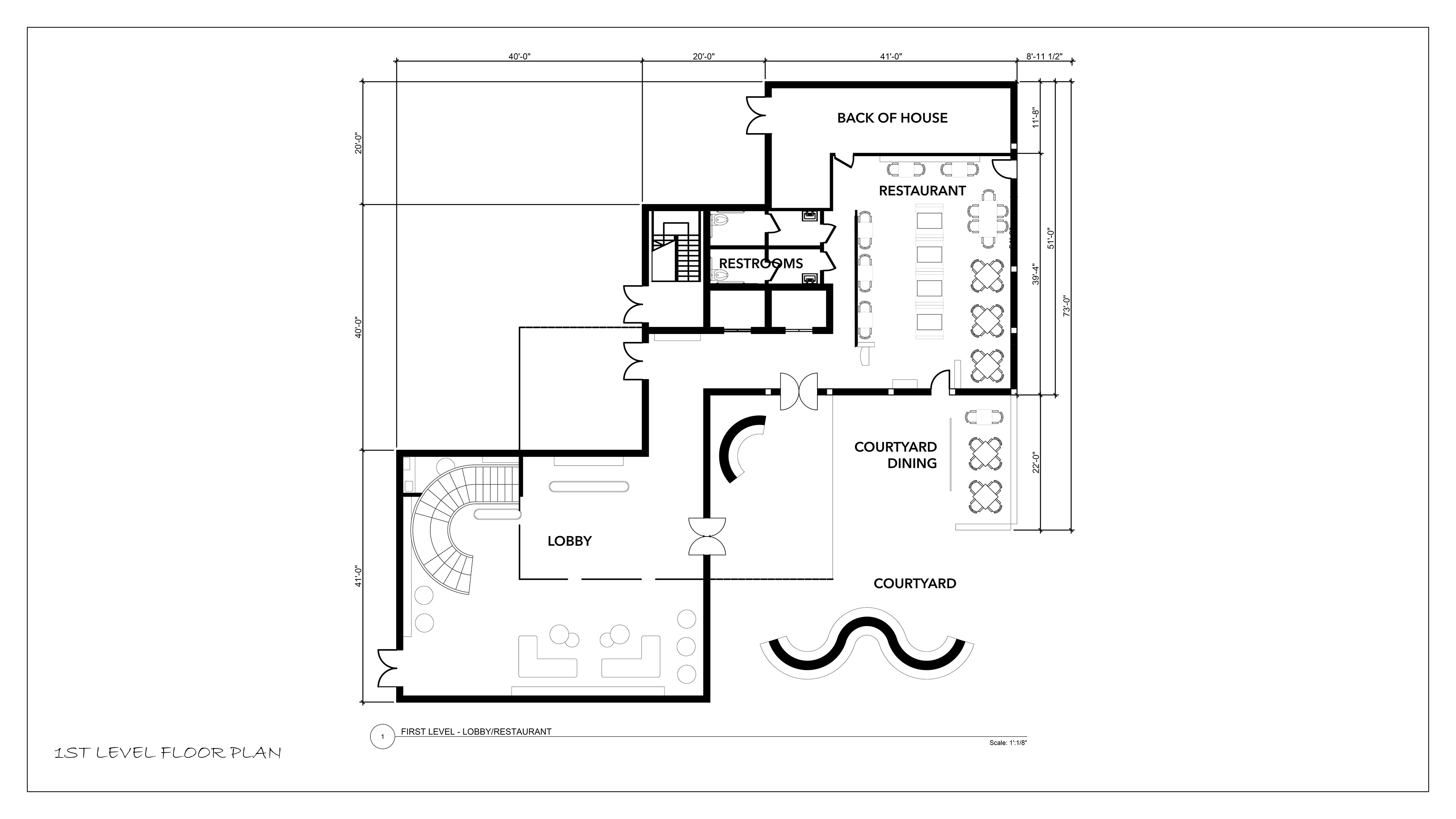
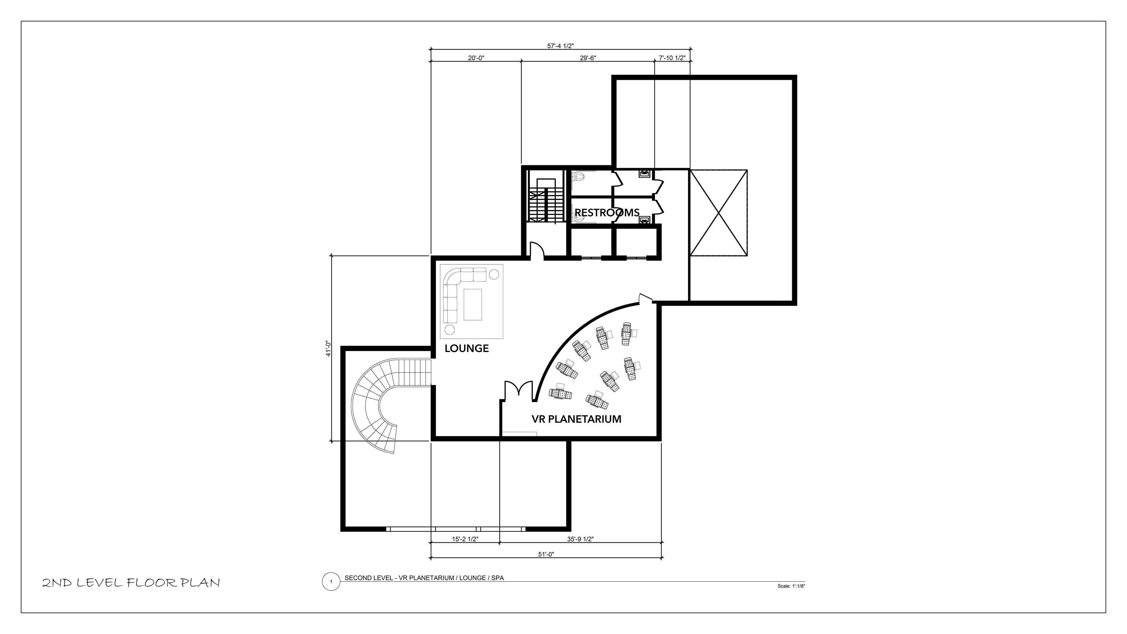
Plans drawn in AutoCAD. 

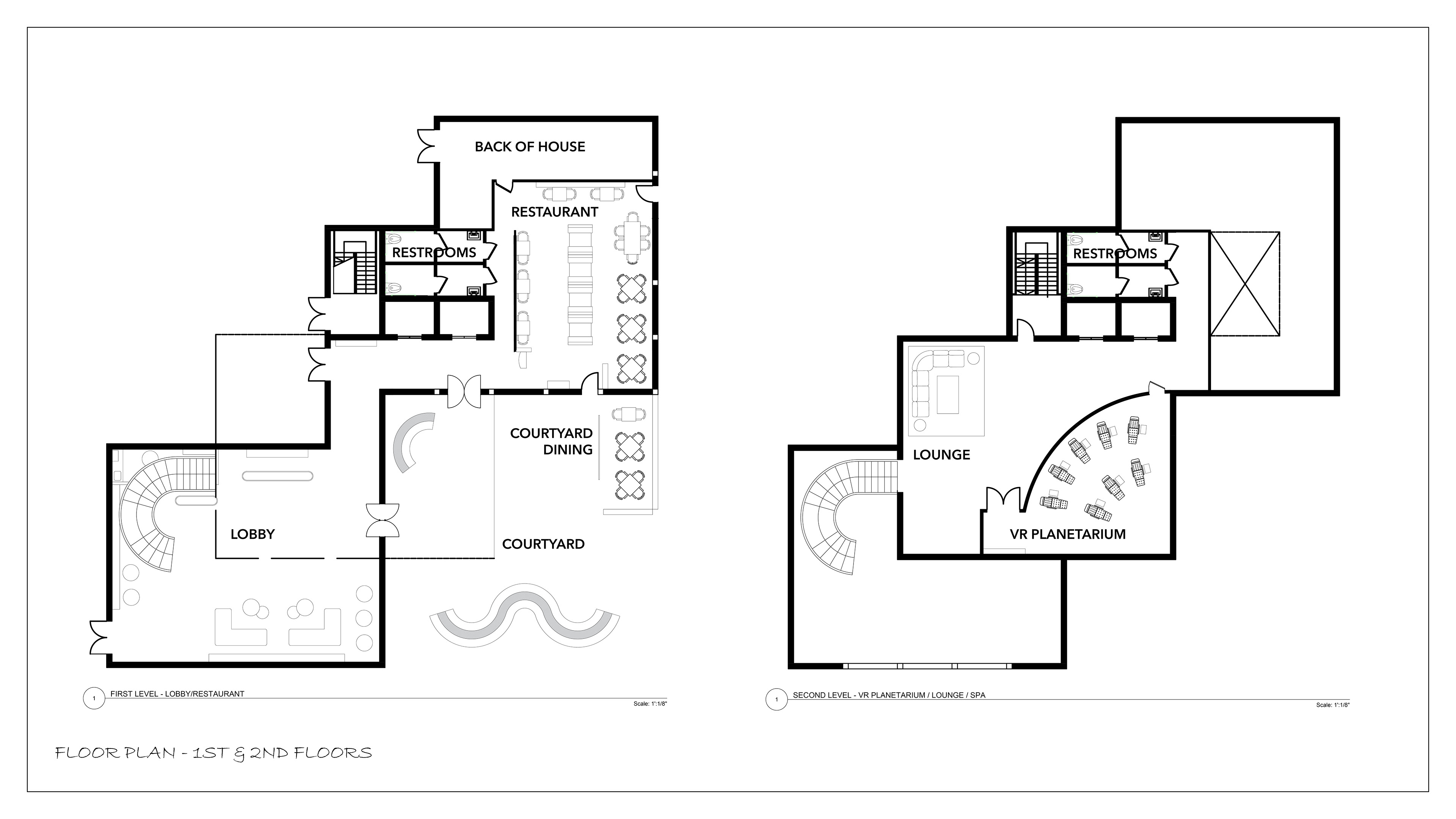
Plans drawn in AutoCAD. 

Plans drawn in AutoCAD. 

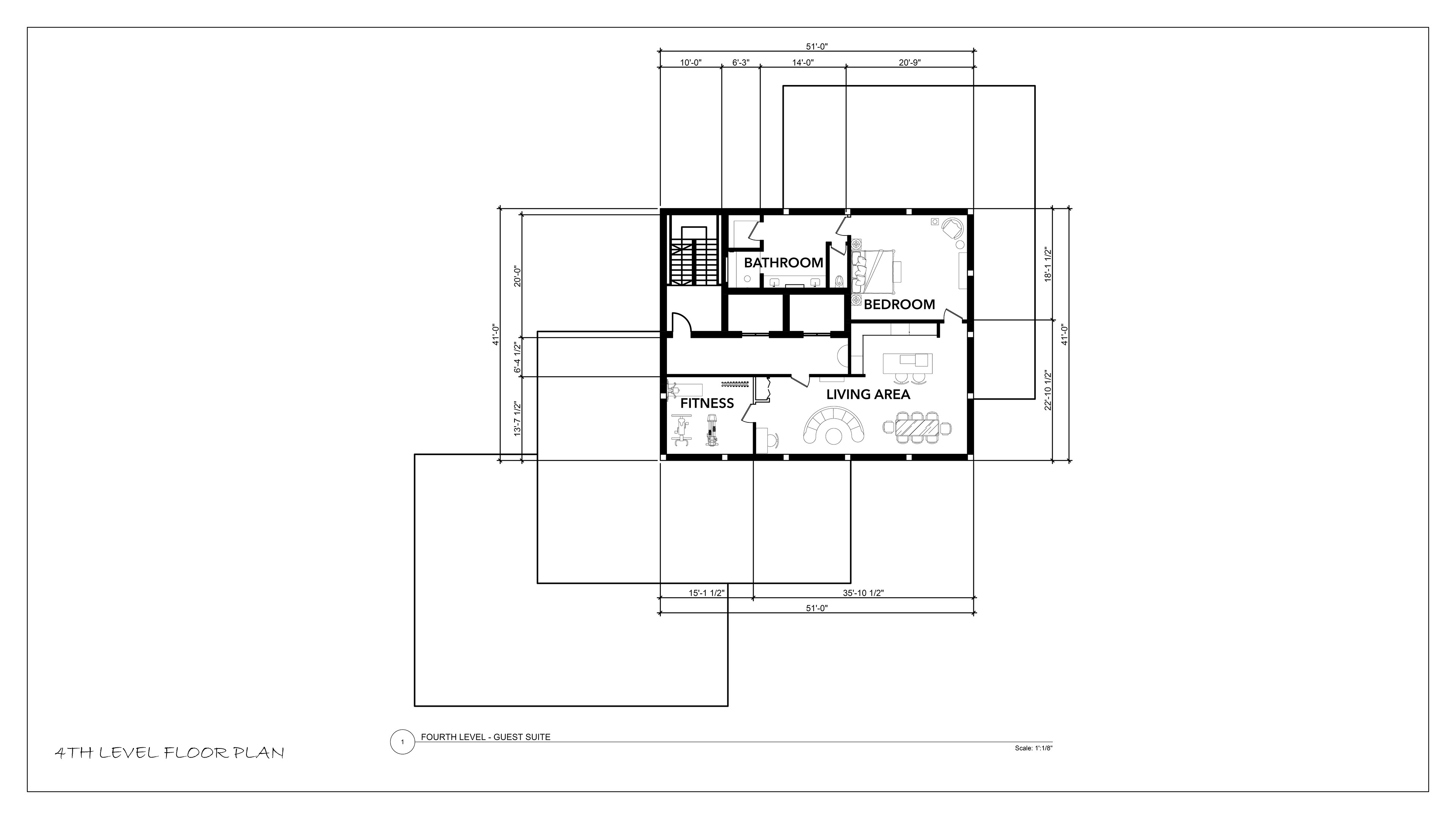
Plans drawn in AutoCAD. 

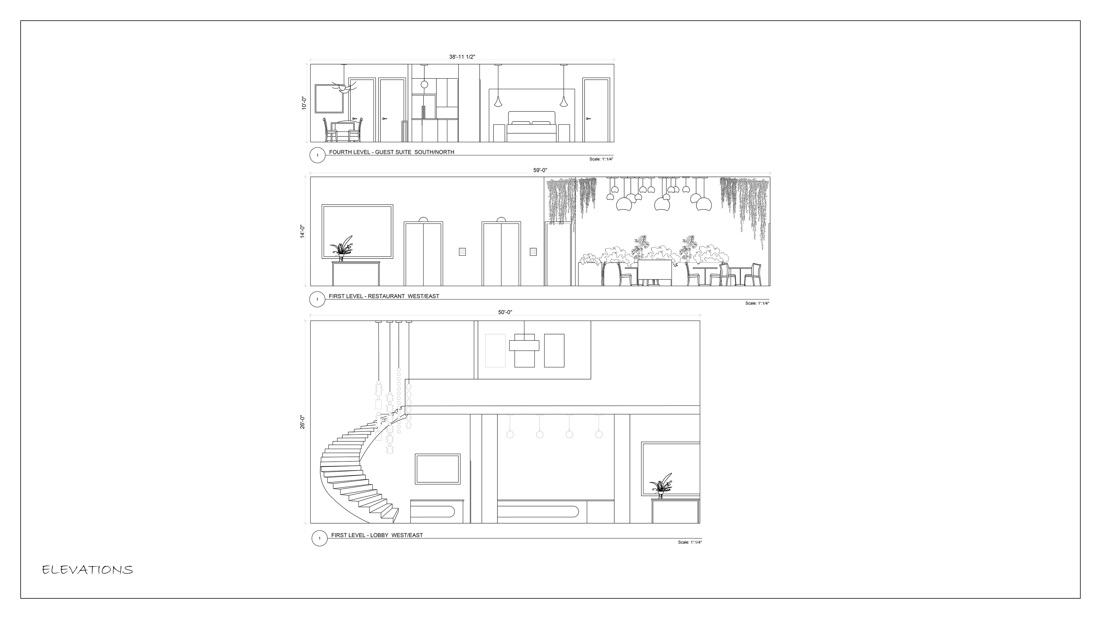
Elevations drawn in AutoCAD. 

Rendering completed in SketchUp with Enscape. Glass and metal stair railing added with Chat GPT AI. 

Rendering completed in SketchUp with Enscape. 

Rendering completed in SketchUp with Enscape. 

Rendering completed in SketchUp with Enscape. 

Rendering completed in SketchUp with Enscape. 

Rendering completed in SketchUp with Enscape. 

Rendering completed in SketchUp with Enscape. 

Back to Top